Shawn Gray - Frio Canyon Real Estate ---

 

Shawn Gray - Frio Canyon Real Estate
Email Shawn
830.486.5065 cell
Property 037 : 62 Turkey Trot Lot 78, Frio Cielo Ranch Uvalde, TX 78801
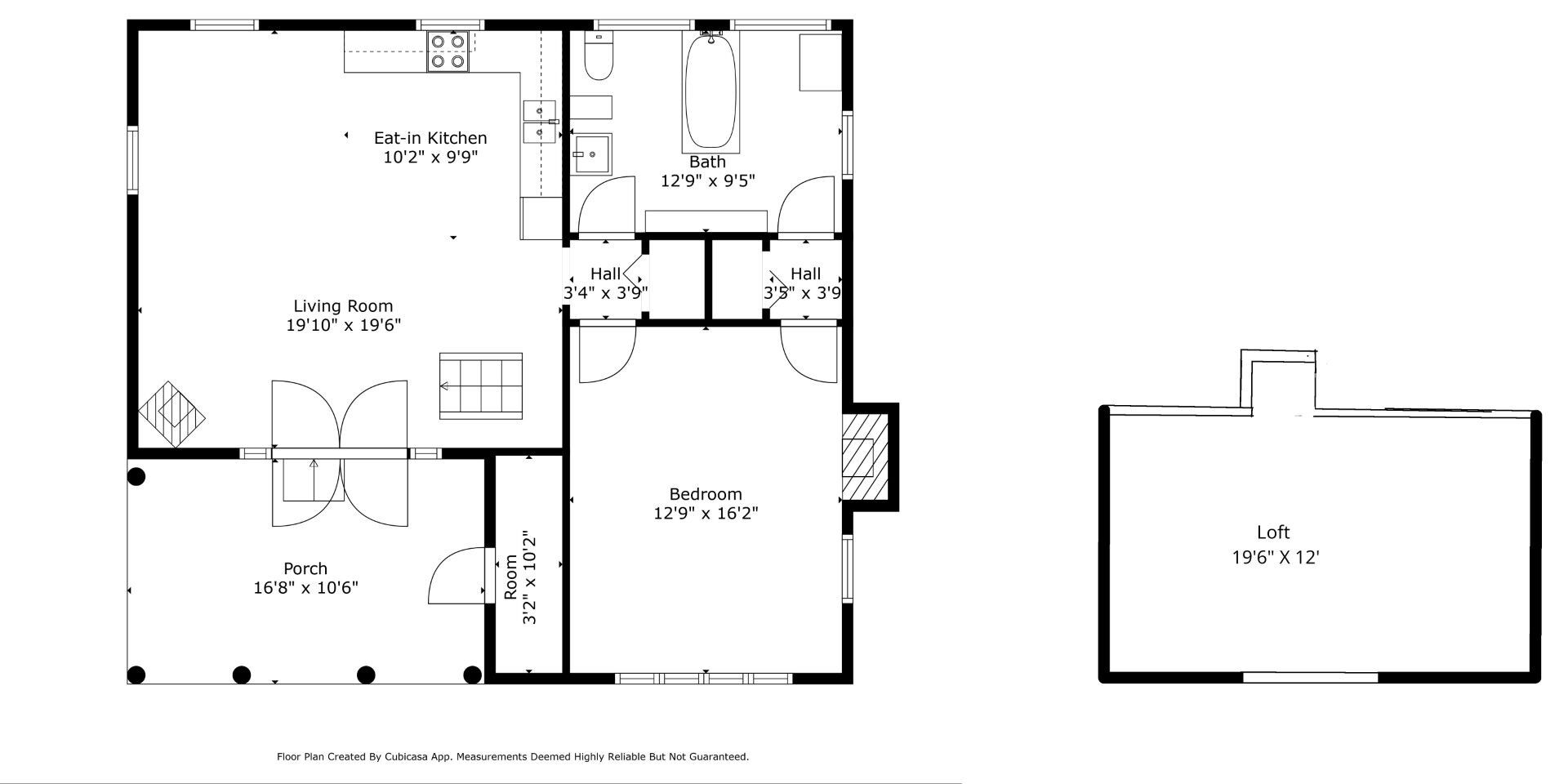
    • 1BD/1BA/Loft Cabin
    • 1088 sq. ft. per CAD
    • Fireplace + Wood Stove
    • Claw Foot Tub
    • .23 ac. Lot
    • Large Oak Trees
    • Almost Riverfront!
    • Frio River Access
    • 100+ Acres of Common Area
    • Nightly Rentals OK
Located under massive pecan and oak trees in Frio Cielo Ranch, this rustic country cabin is “almost riverfront” as it is just a short walk from the patio to the Dry Frio River. Enter the double antique doors and find a large living room w/wood burning stove and an eatin kitchen. Sturdy (but steep) stairs take you up to the loft area which houses two double beds. The primary bedroom features a unique wood burning fireplace constructed of local river rock. A nice claw foot tub graces the spacious bathroom with access via the primary bedroom and off the hallway. All furnishings and appliances convey with the sale! Frio Cielo Ranch owners share over 100 acres of common property that includes a covered pavilion, bath house, mountain-side observation area, horse pastures, campsites and a mile long stretch of BOTH SIDES of the Dry Frio River--which is NOT dry!!! You must see this place to fully appreciate the unique beauty.
https://www.airbnb.com/rooms/36426445
Listed at $179,000
Click here for a printable brochure
P.O. Box 1489, 230 US Hwy. 83 South, Leakey, TX, 78873 - 830.232.4500 office - 830.232.4501 fax

Shawn Gray - Frio Canyon Real Estate

Click an image to see a larger version
  • Frio Canyon Real Estate
  • Frio Canyon Real Estate
  • Frio Canyon Real Estate
  • Frio Canyon Real Estate
  • Frio Canyon Real Estate
  • Frio Canyon Real Estate
  • Frio Canyon Real Estate
  • Frio Canyon Real Estate
  • Frio Canyon Real Estate
  • Frio Canyon Real Estate
  • Frio Canyon Real Estate
  • Frio Canyon Real Estate
  • Frio Canyon Real Estate
  • Frio Canyon Real Estate
  • Frio Canyon Real Estate
  • Frio Canyon Real Estate
  • Frio Canyon Real Estate
  • Frio Canyon Real Estate
  • Frio Canyon Real Estate
  • Frio Canyon Real Estate
  • Frio Canyon Real Estate
  • Frio Canyon Real Estate
  • Frio Canyon Real Estate
  • Frio Canyon Real Estate
  • Frio Canyon Real Estate
  • Frio Canyon Real Estate
  • Frio Canyon Real Estate
  • Frio Canyon Real Estate
  • Frio Canyon Real Estate
  • Frio Canyon Real Estate
  • Frio Canyon Real Estate
  • Frio Canyon Real Estate
  • Frio Canyon Real Estate
  • Frio Canyon Real Estate
  • Frio Canyon Real Estate
  • Frio Canyon Real Estate
  • Frio Canyon Real Estate
  • Frio Canyon Real Estate
Frio Canyon Real Estate
Shawn Gray - Frio Canyon Real Estate
HOME PAGEALL LISTINGSHOMESWATERFRONT / WATER ACCESSACREAGEHUNTINGCOMMERCIAL
LOCAL INFORMATIONBROKERAGE SERVICES20 REASONS TO HIRE A REALTORABOUT US
Shawn Gray - Frio Canyon Real Estate
Certified Negotiaton Expert Certified Negotiaton Expert
Site designed and maintained by
web-author.com.
© Frio Canyon Real Estate
Shawn Streib Gray, GRI, CNE
Broker / Owner - Frio Canyon Real Estate
P.O. Box 1489, 230 US Hwy. 83 South, Leakey, TX  78873
830.486.5065 cell
830.232.4500 office - 830.232.4501 fax - 830.232.6954 home
Shawn@FrioCanyonRealEstate.com
gri mls Realtor equal housing
Shawn Gray - Frio Canyon Real Estate Facebook Page
All information furnished on this site is obtained from sources deemed reliable, but no warranty or representation, expressed or implied,
is made to the accuracy thereof, & is submitted subject to prior sale, withdrawal, or changes in price or terms without notice.